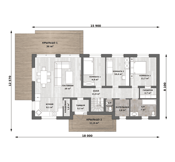
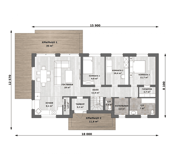
Общая площадь
169.5
Архитектура и дизайн
Сотрудничество
Каталоги

Голосуй за понравившийся проект и получай скидку на проживание в отелях с окнами FAKRO!
ПодробнееГабариты
18x13м
Этажность
2этажа
Общая площадь
169.5
Важно, вы можете вносить изменения в проект, а также выбирать технологии строительства и много других параметров. Пожалуйста, оставьте заявку и наши специалисты с вами свяжутся.


0 отзывов
Фундамент
Монолитная ж/б плита 200 мм