Архитектура и дизайн
Сотрудничество
Каталоги

Голосуй за понравившийся проект и получай скидку на проживание в отелях с окнами FAKRO!
ПодробнееДля тех, кто ценит время и уверенность в завтрашнем дне, компания «Баухаус» представляет проект «Дом с Умом 170-2». Это не просто коробка с окнами, а тщательно продуманное пространство для жизни семьи, где каждая деталь предусмотрена заранее.
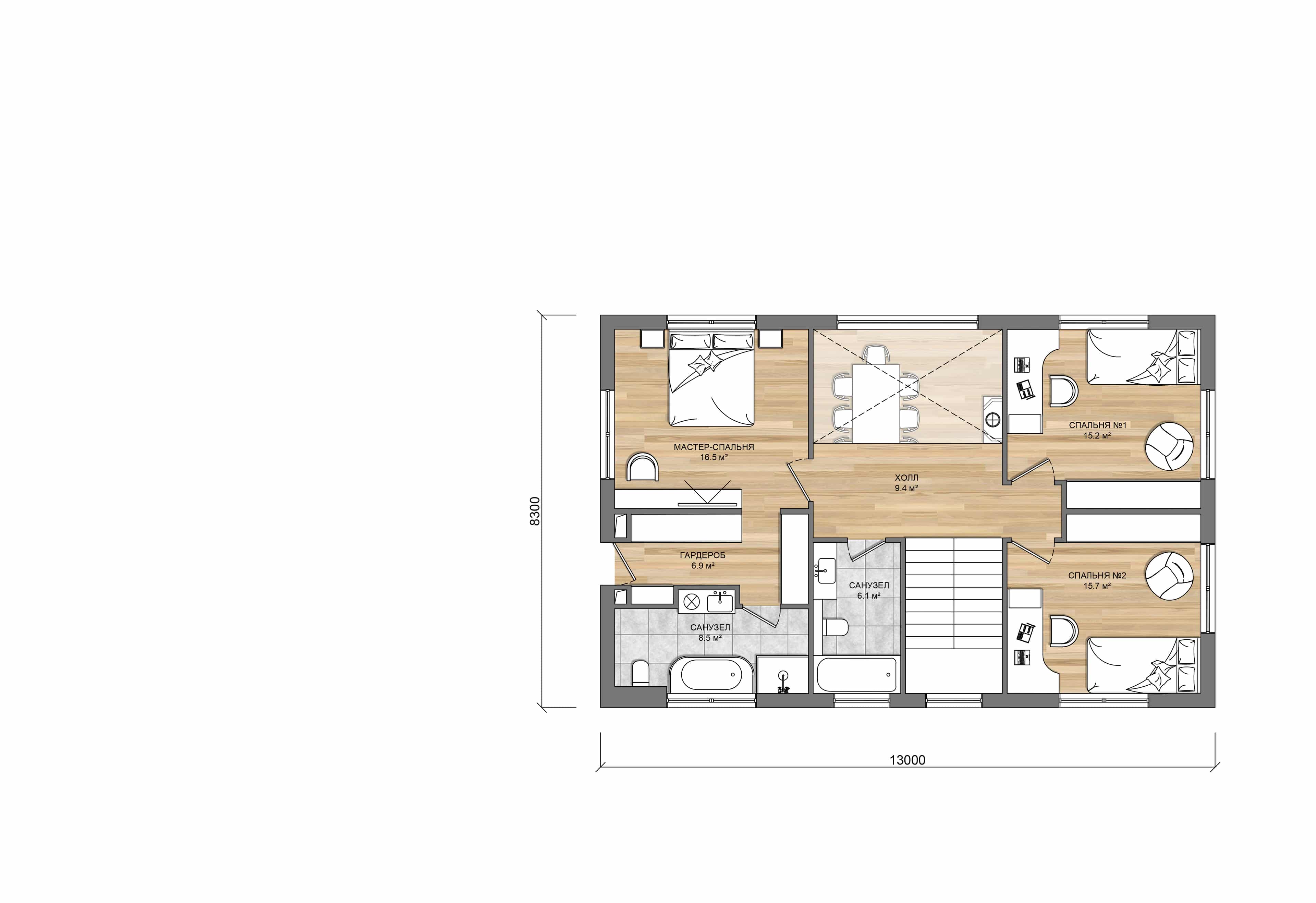
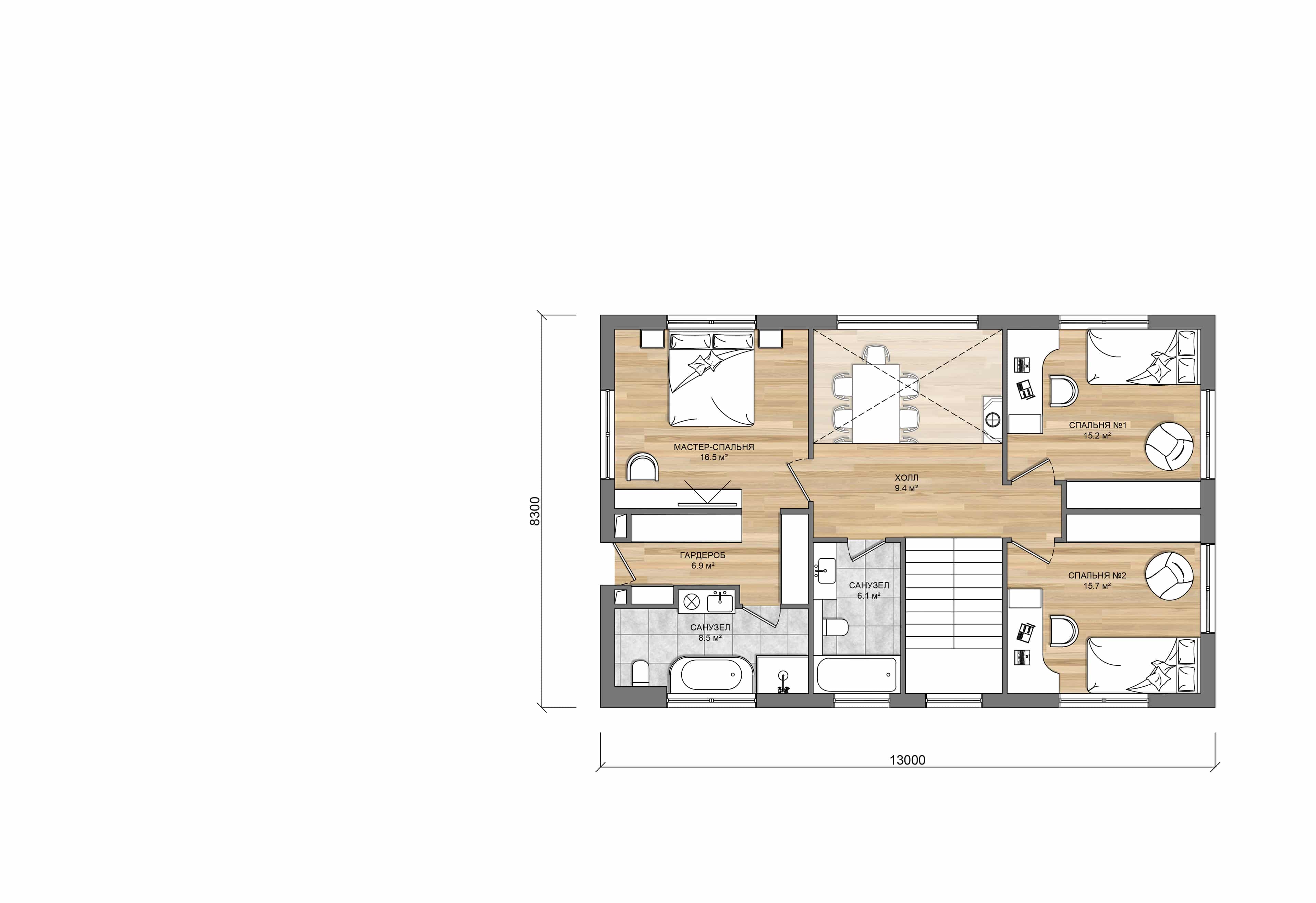
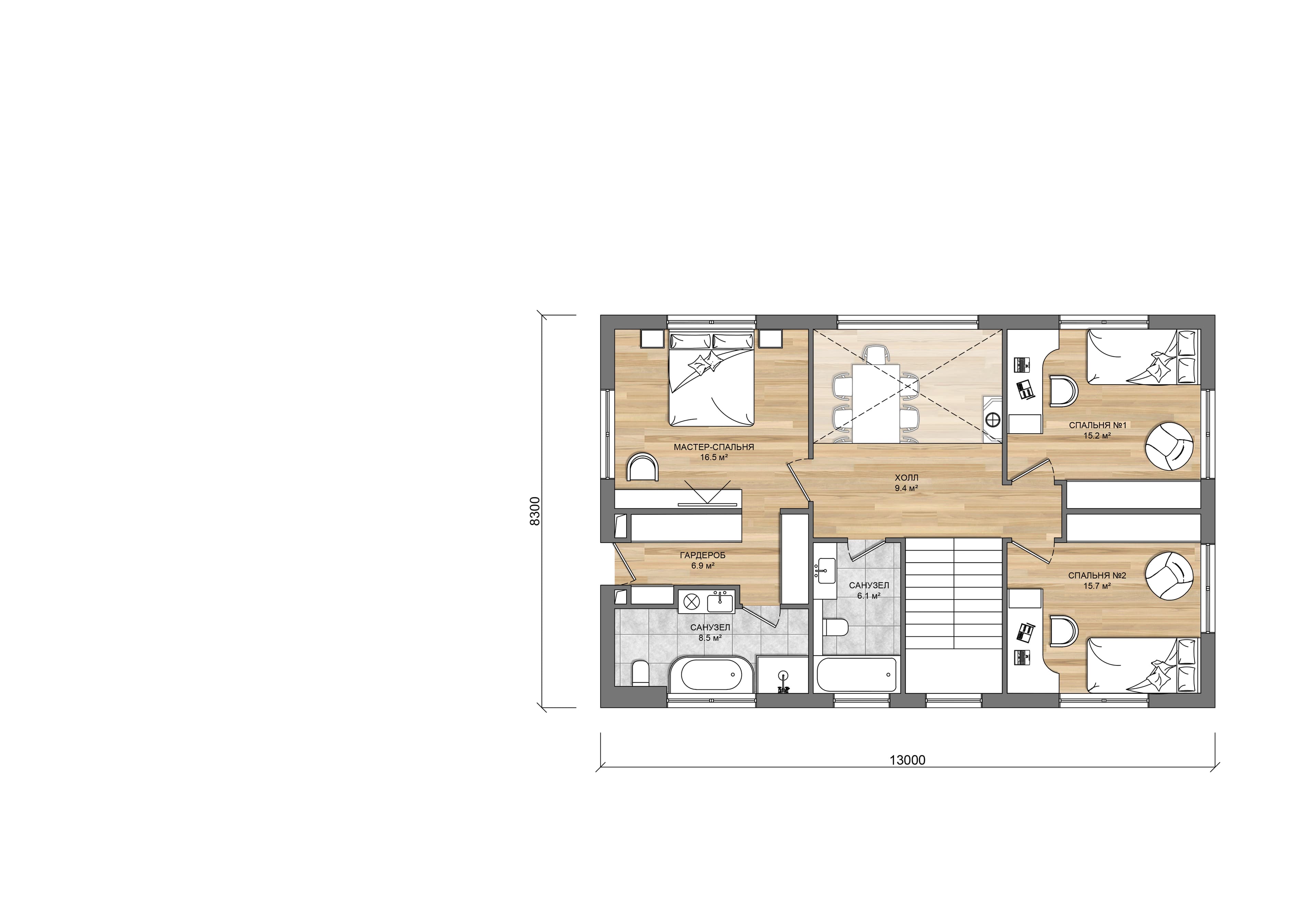
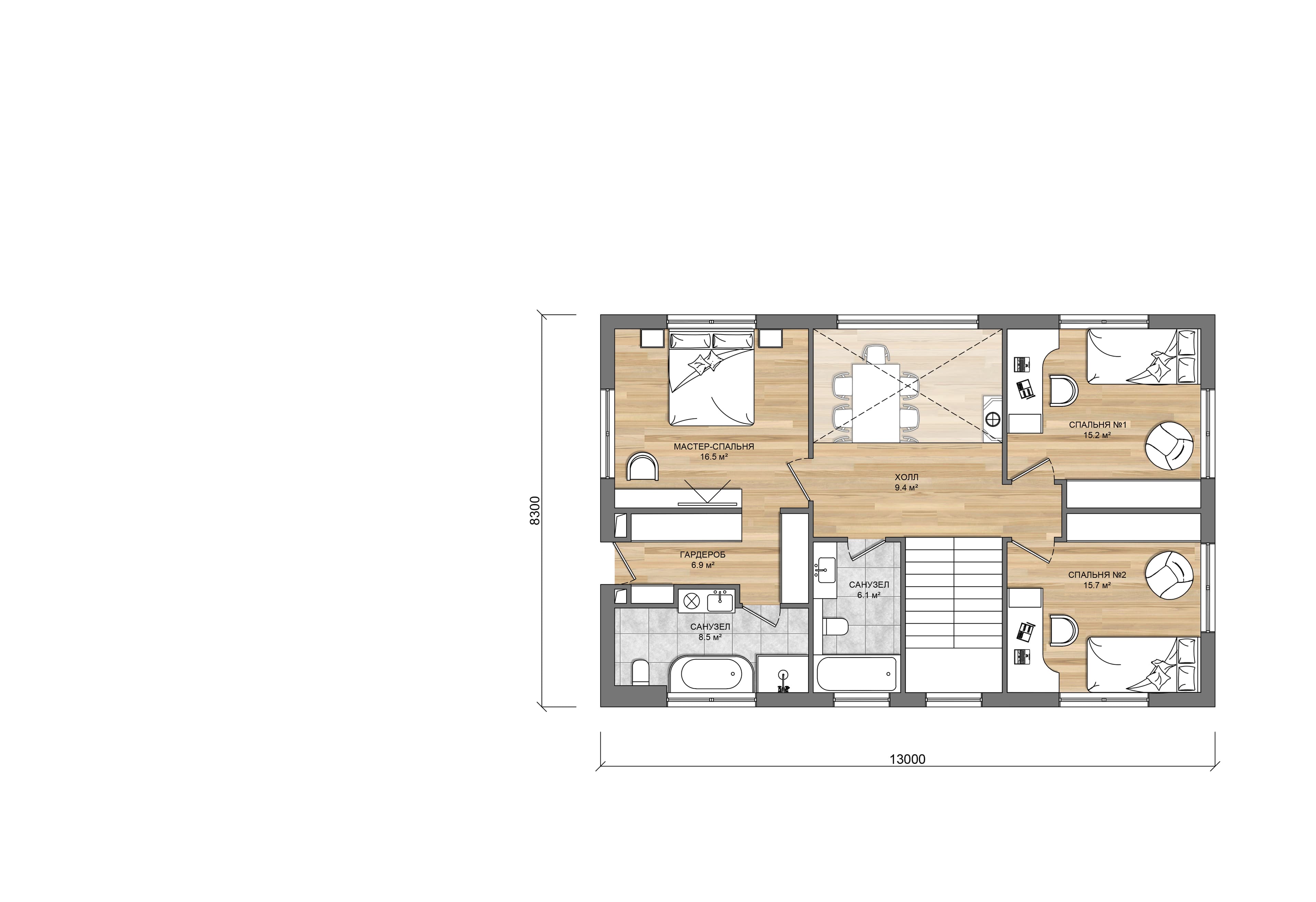
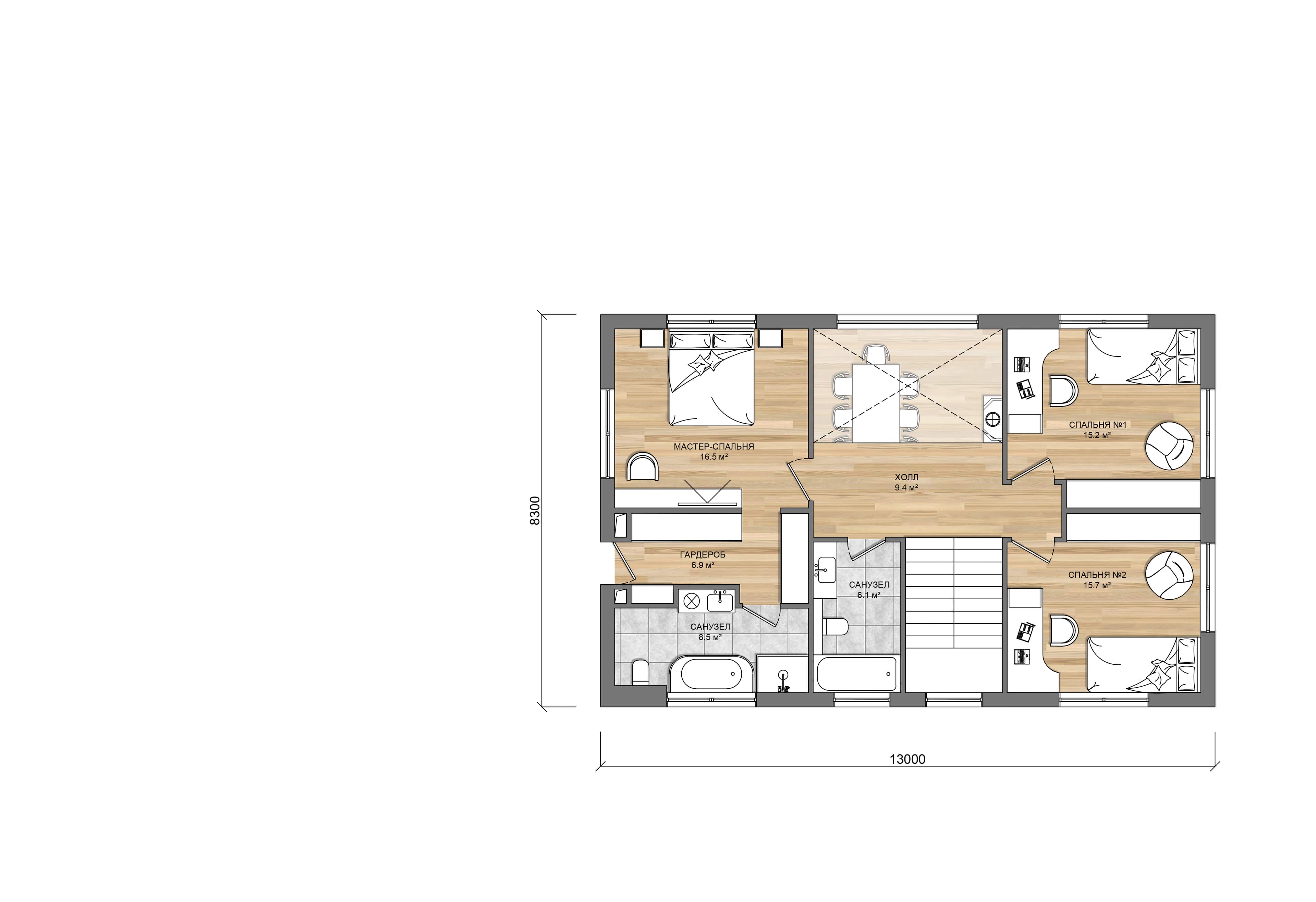
Продуманная планировка: Проект идеален для семьи из 4-5 человек. Просторная кухня-гостиная станет сердцем дома, три изолированные спальни обеспечат личное пространство для всех, а кабинет и гардеробные добавят комфорта и функциональности.
Надежность по умолчанию: Основание — монолитная плита. Стены из железобетонных панелей и готовые стропильные фермы гарантируют прочность и долговечность. Энергоэффективные окна и цементно-песчаная черепица дополняют образ современного, теплого и тихого дома. Все инженерные системы, включая приточно-вытяжную вентиляцию, уже включены в проект.
Решение «под ключ»: «Баухаус» берет на себя все этапы — от возведения коробки до чистовой отделки и меблировки. Ваша задача — представить себе новую жизнь, все остальное мы берем на себя.
2х этажный дом с мансардой
1 кухня-гостиная
3 спальни
3 сан. Узла
2 гардероба
1 кабинет
Контакты:
https://bau-haus.ru
+7 (495) 103-11-66
info@bau-haus.ru
Общая площадь
170
Кровля
Важно, вы можете вносить изменения в проект, а также выбирать технологии строительства и много других параметров. Пожалуйста, оставьте заявку и наши специалисты с вами свяжутся.


0 отзывов
минеральная черепица
Материал стен
железобетонные панели
Отделка
гипсовая штукатурка