Архитектура и дизайн
Сотрудничество
Каталоги

Голосуй за понравившийся проект и получай скидку на проживание в отелях с окнами FAKRO!
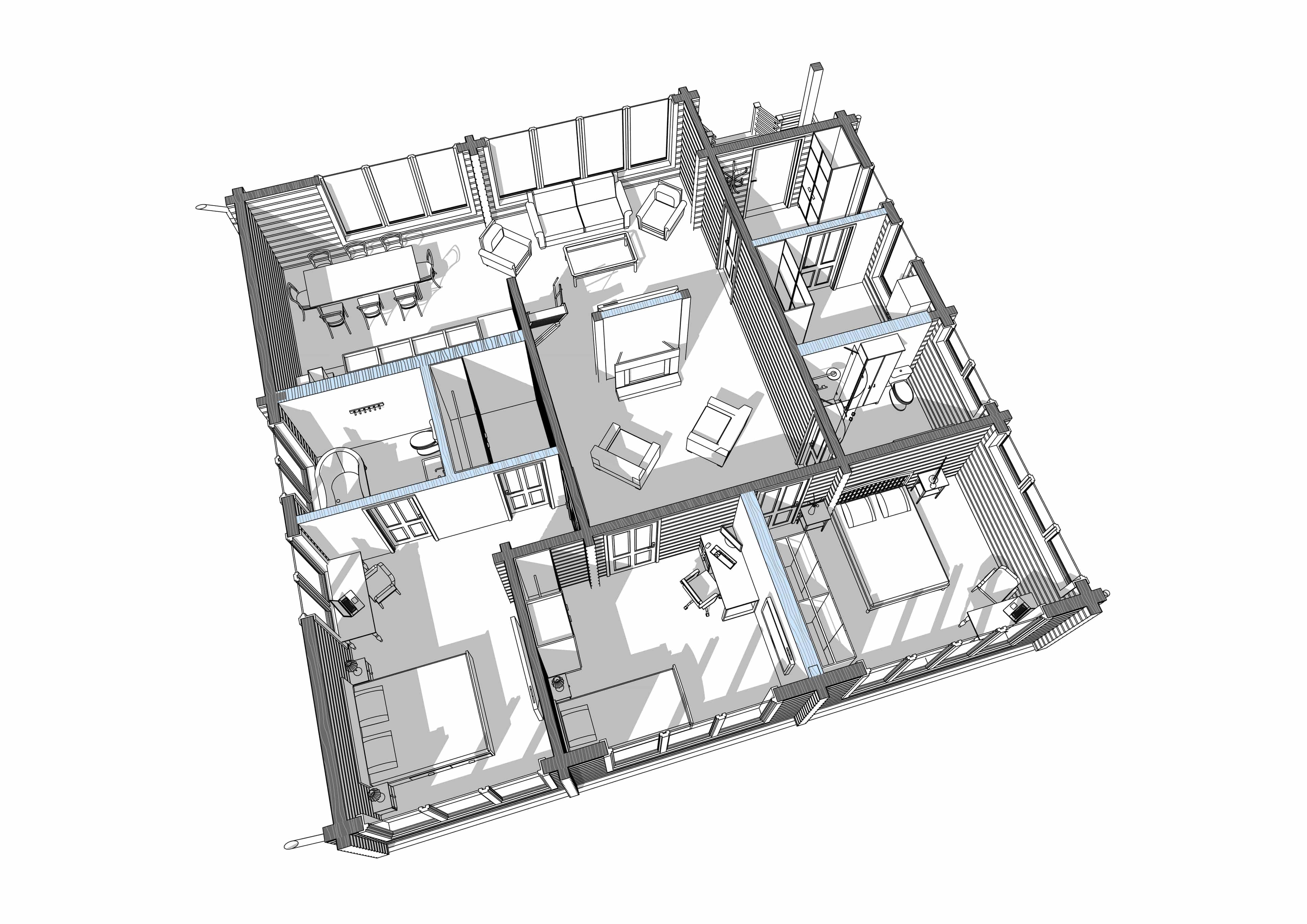
ПодробнееСтиль-европейский
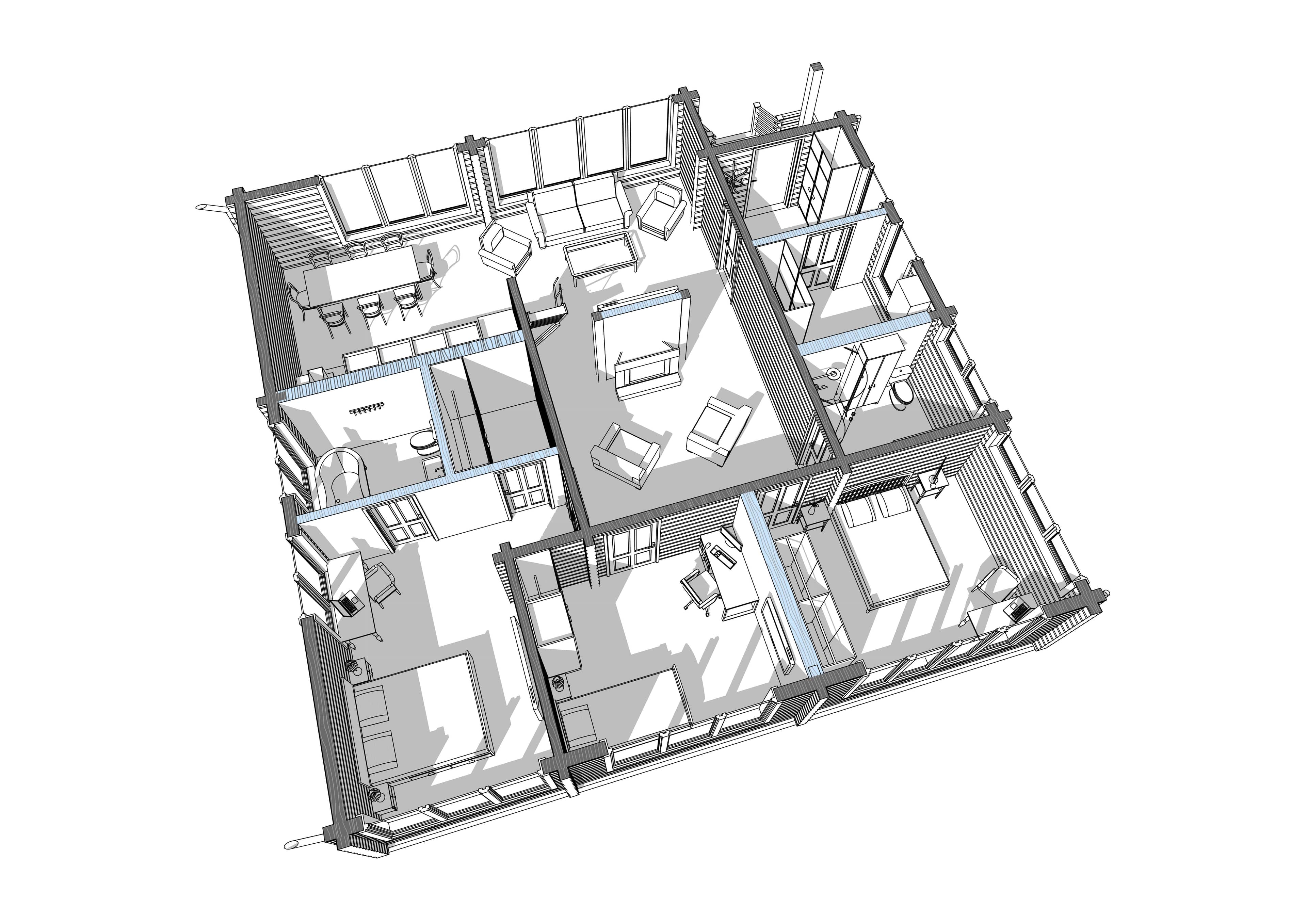
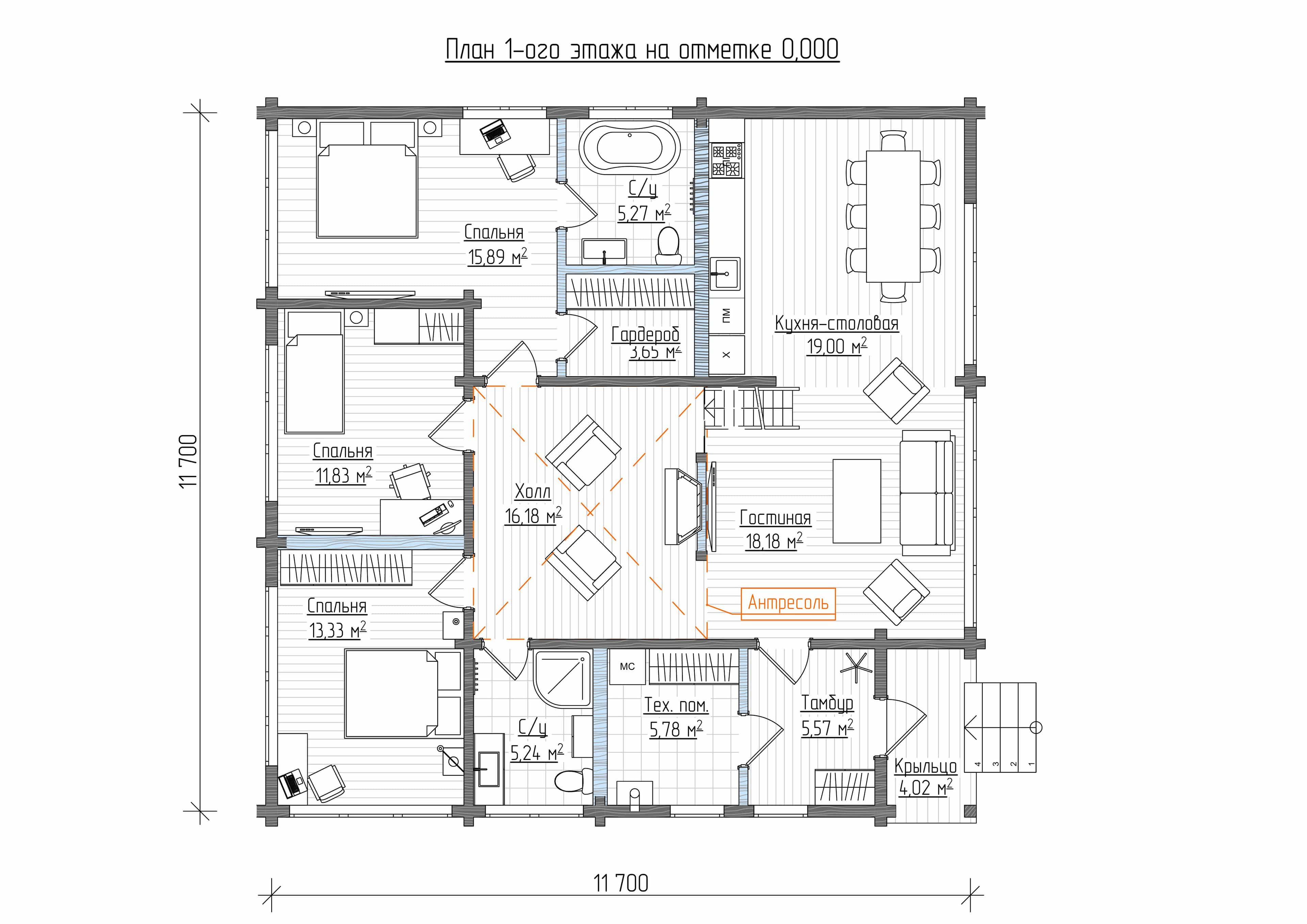
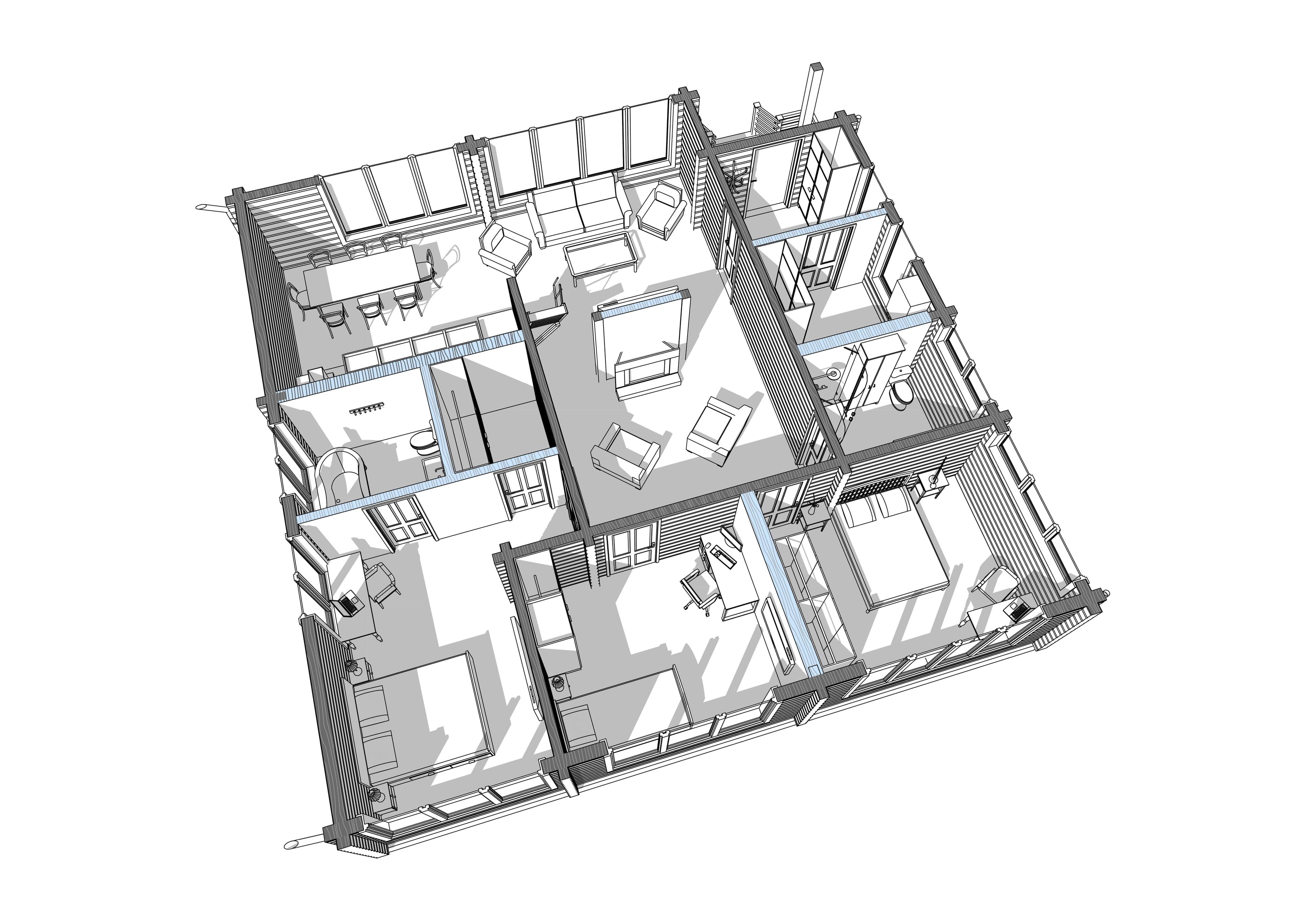
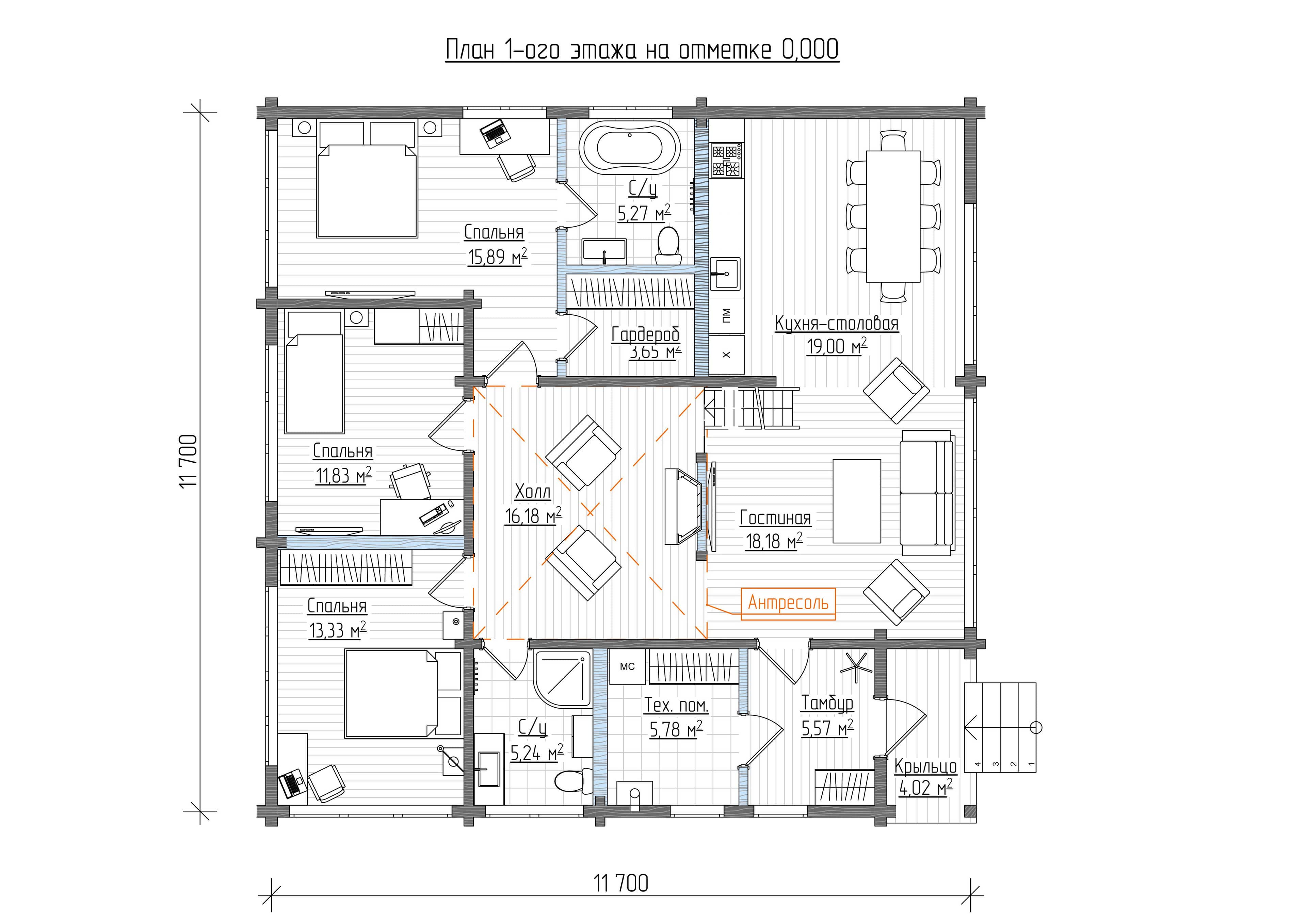
Общая площадь-124м2 + антресоль 16м2
Высота 1 этажа -минимальная 2,7м
Высота 1 этажа -максимальная 5,6м
Габариты – 11,9 х 11,9 м
Материал стен (подробный) -клееный брус толщиной 205мм и 160мм
Фундамент-свайно-ростверковый
Перекрытия-монолитные ж/б
Кровля-битумная черепица
Крыша-скатная
Наружная отделка-покраска
Тип строения - жилой дом
Кол-во этажей - 1
Мансардный этаж – возможна антресоль 16м2
Мансардные окна – 2шт
8-800-500-1173
контакты: https://vdknn.ru/contacts/
Общая площадь
124
Стиль
европейский
Материал стен
Важно, вы можете вносить изменения в проект, а также выбирать технологии строительства и много других параметров. Пожалуйста, оставьте заявку и наши специалисты с вами свяжутся.


0 отзывов
Клееный брус
Фундамент
свайно-ростверковый
Перекрытия
монолитные ж/б
Кровля
битумная черепица
Крыша
скатная
Наружная отделка
покраска
Крыша
скатная
Наружная отделка
покраска