Архитектура и дизайн
Сотрудничество
Каталоги

Голосуй за понравившийся проект и получай скидку на проживание в отелях с окнами FAKRO!
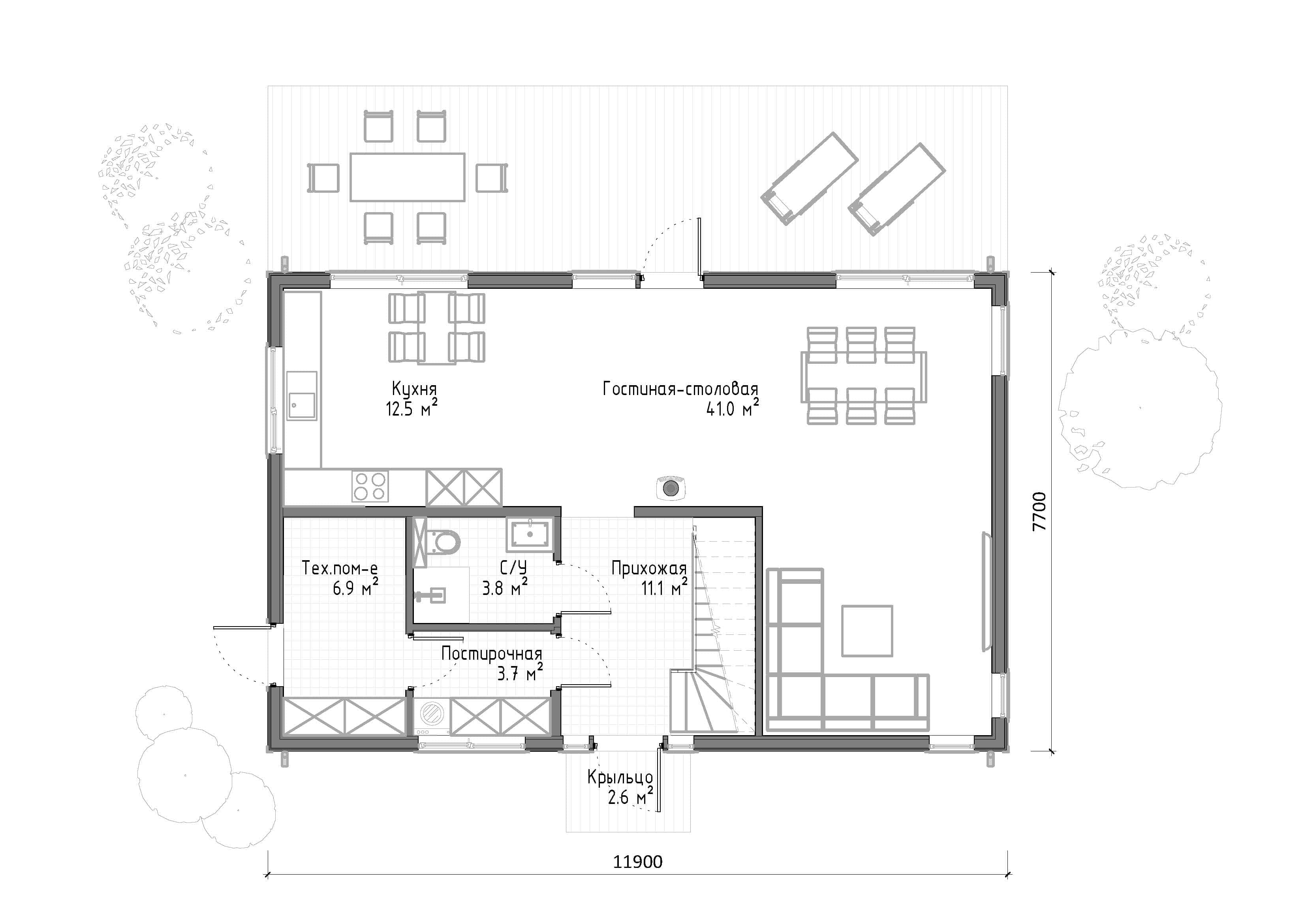
ПодробнееNoomi (Нооми) - знакомьтесь, это один из самых востребованных проектов у норвежских покупателей. Двухэтажный дом, просторный и светлый. На первом этаже открытая кухня-гостиная и столовая с большими окнами, прихожая, санузел, постирочная и техническое помещение с отдельным входом. На втором этаже расположены мастер-спальня с гардеробной, 2 спальни, санузел и холл.
Норвежские архитекторы на протяжении всех лет собирали отклики у людей, купивших Noomi, и отразили все полученные пожелания. Первый в России дом Noomi построен в коттеджном поселке «Бобровое». А у вас есть прекрасная возможность посетить его.
Контакты:
+7 (812) 209-07-22
+7 (495) 109-07-22
fjorden@litwin.house
www.fjorden.ru
Общая площадь
152,4
Жилая площадь
153,2
Габариты
11,9х7,7 м
Высота потолков
0,96-2,7 м
Количество этажей
2
Количество спален/СУ
3/2
Важно, вы можете вносить изменения в проект, а также выбирать технологии строительства и много других параметров. Пожалуйста, оставьте заявку и наши специалисты с вами свяжутся.


0 отзывов