Архитектура и дизайн
Сотрудничество
Каталоги

Голосуй за понравившийся проект и получай скидку на проживание в отелях с окнами FAKRO!
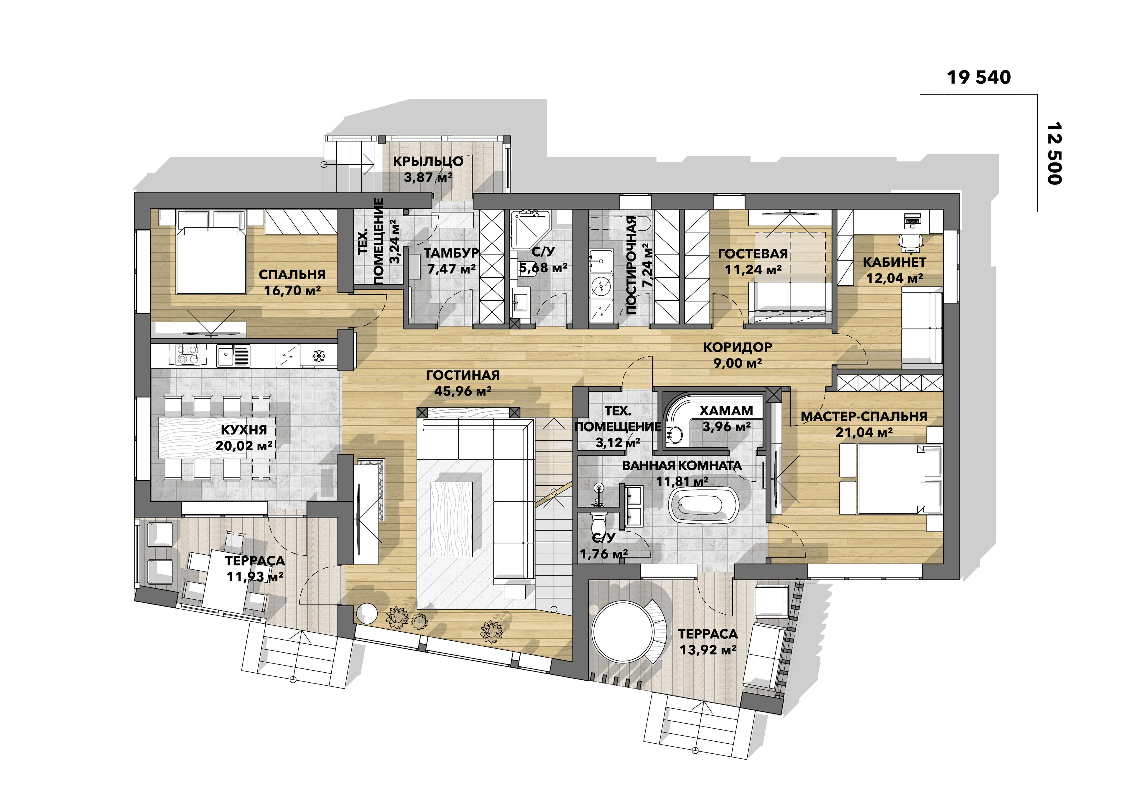
ПодробнееПроект разработан специально для участка у подножья склона, каскадами спускающегося к реке.
Акцент фасада — витражное остекление. Дом обращен в сторону природного ландшафта: в сторону реки ориентированы в проекте гостиная, кухня, спальня хозяев и две террасы. На террасе установлены купели на дровах. Терраса объемно-планировочными решениями выведена в отдельный уютный уголок.
Проект разработан для семьи из трех человек. Это одноэтажный дом, но с антресолью над зоной гостиной и с небольшим «полуэтажом», на котором расположены лаунж-зона и дополнительная спальня с мансардными окнами для достаточного освещения и уюта.
Контакты:
Сайт www.gwd.ru
Телефон 8-800-333-11-11
Общая площадь
250 м2
Комнат
7
Санузлов
Важно, вы можете вносить изменения в проект, а также выбирать технологии строительства и много других параметров. Пожалуйста, оставьте заявку и наши специалисты с вами свяжутся.


0 отзывов
2