Проект GROTTO – двухэтажный дом в стиле барнхаус, построенный по экологичной и передовой технологи фахверк, с заполнением вертикальным клеёным брусом. Решение, которое встретишь нечасто, но оно так цепляет взгляд. Архитектура дома и интерьер продуманы до мелочей: натуральные материалы, лаконичные формы и функциональность создают атмосферу тепла и уюта. Проект идеально подходит для большой семьи, любящей проводить время вместе и с компанией друзей.
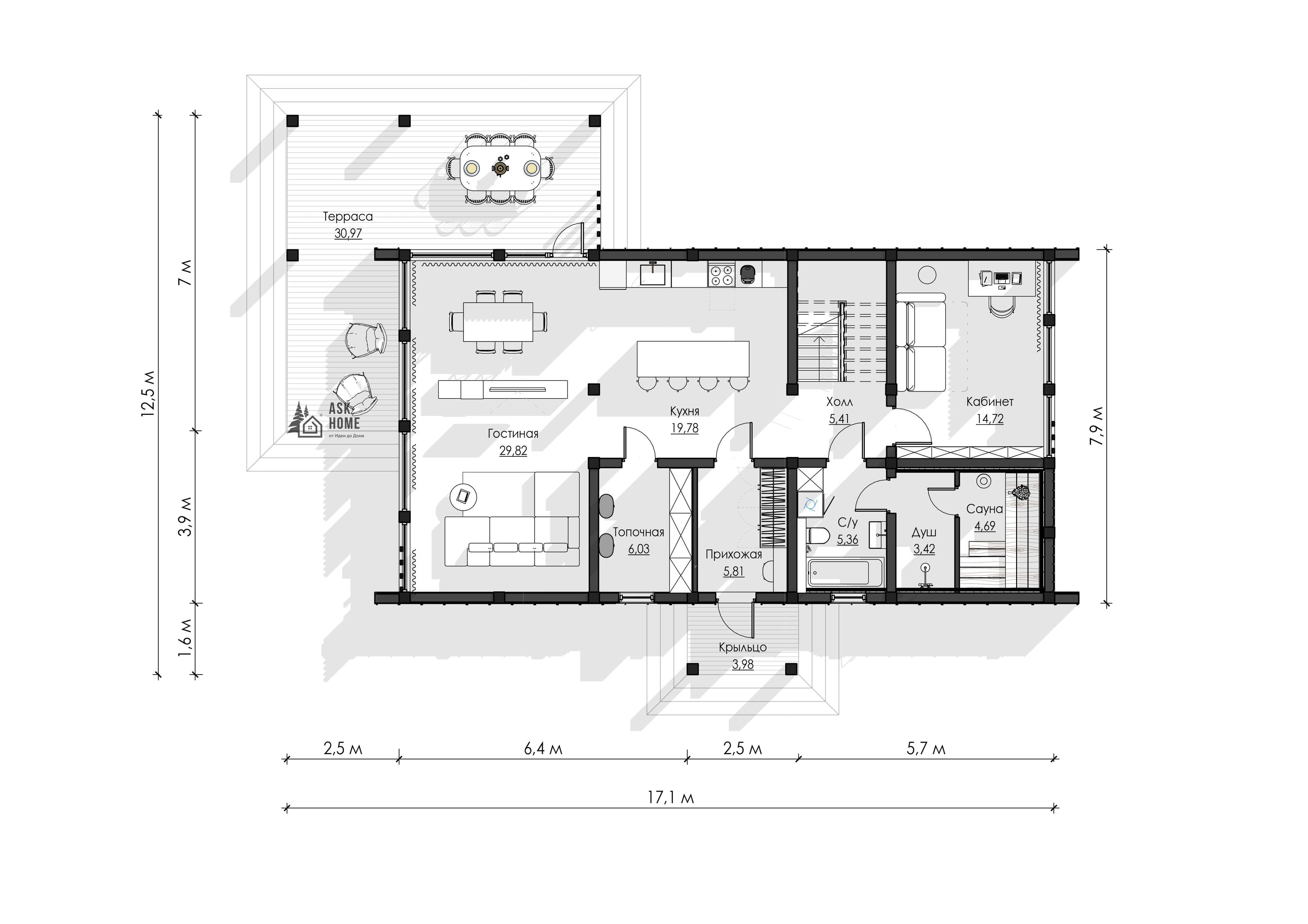
Дом встречает просторной прихожей с удобно организованной зоной хранения. Рядом располагается гостевой санузел, откуда можно попасть в сауну с душем, где получится снять весь накопившийся стресс. Сердцем дома является просторная кухня-гостиная – тёплое и душевное место, наполненное естественным светом благодаря панорамным окнам и второму свету. Здесь хозяева будут создавать и хранить самые яркие семейные воспоминания. Из гостиной можно попасть на террасу с видом на лес. В планировке предусмотрен кабинет, где можно уединиться и заняться работой или творчеством.
На втором этаже разместились спальни. Две детские освещаются карнизными окнами переходящими в мансардные – идеальное решение для комнат со скатным потолком от компании Fakro. Они создают уютную атмосферу для самых юных членов семьи. Мастер-спальня с собственным гардеробом и санузлом отделена от остальных помещений, формируя комфорт и приватность хозяев.
Контакты компании АСК ХОУМ:
Сайт: https://askhome.me/
Email: info@askhome.me
Телефон: +7 962 556 5577